SPRING 2023, POEISIS STUDIO 2
INDIVIDUAL, PROF. TOMMY YANG
PROJECT DESCRIPTION
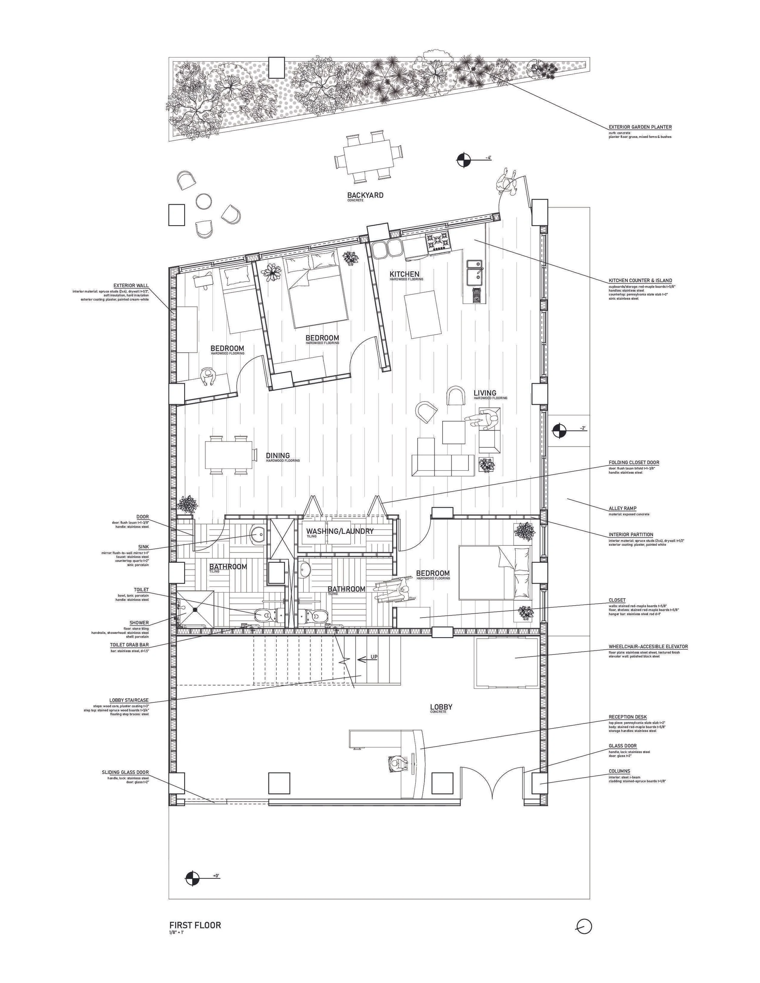
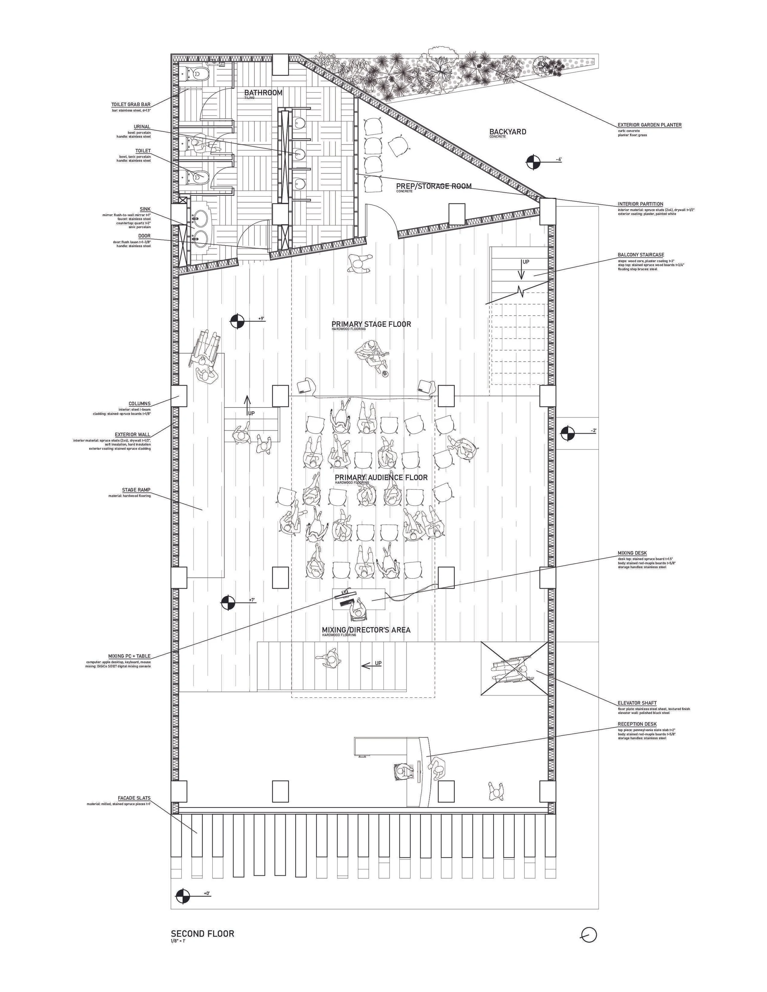
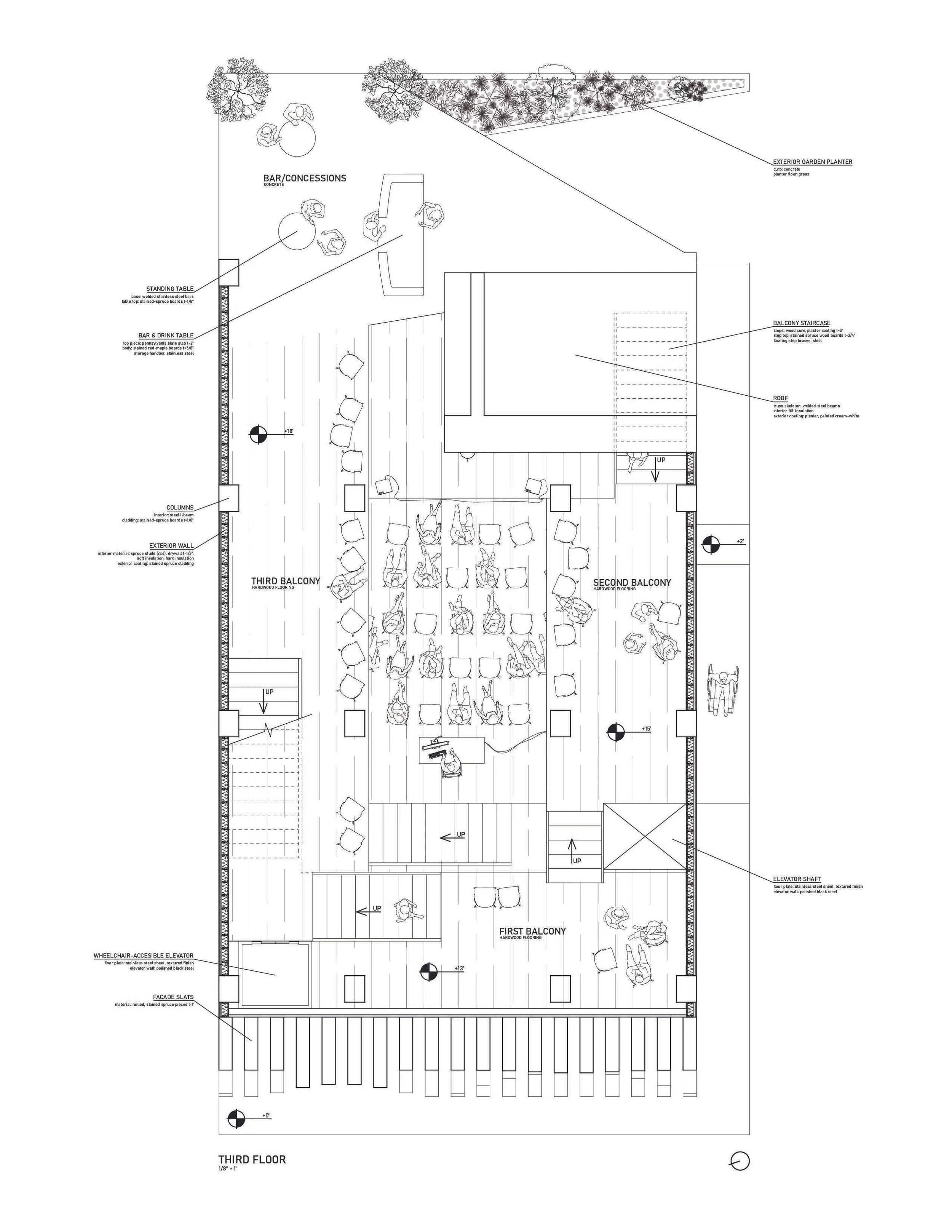
THE GOLDEN AGE STAGE
MULTIGENERATION FAMILY HOME & JAZZ CLUB
SKILLS
NARRATIVE WRITING, PHYSICAL MODELING, RHINOCEROS 7, ADOBE ILLUSTRATOR, PHOTOSHOP
The Golden Age Stage, located on an empty lot on Murray St. and Phillips Ave., aims to create a building which accounts for how narrative building around clients can tie into a mindful, lasting, and flexible structure, this multigenerational home also serves as a jazz club, bringing together the community and revitalizing dwindling or destroyed Pittsburgh music cultures.

